1292 NEUBAU DEFH – QUELLENSTRASSE - SCHÄNIS

  • Realisierung 2016
  • Entwurf, Planung, Bauleitung



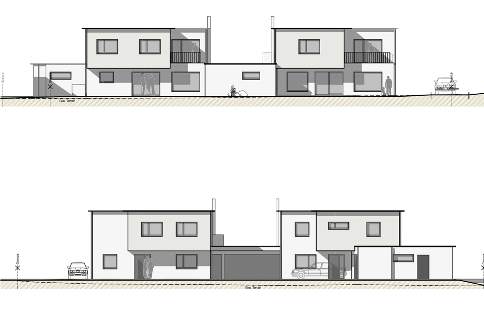
Mitten in einem Wohnquartier in Schänis befindet sich der Standort dieses über lange Zeit unbebauten Grundstücks. Die Erschliessung von der Südseite sowie die Form und Grösse der Parzelle stellten eine herausfordernde Ausgangslage dar. Aufgrund der schwierigen Bodenbeschaffenheit und der Bauzone wurde auf ein Untergeschoss verzichtet und die Volumen auf eine Pfahlfundierung gebaut.

Ein eingeschobener Garagenkörper trennt die beiden Hausteile und erzeugt Privatsphäre für die Hauseigentümer.

Das Doppeleinfamilienhaus zeichnet sich im Erdgeschoss durch fast quadratische Grundrisse aus und wird im Obergeschoss durch quer darüber liegende Volumen ergänzt. Die Nutzungen Wohnen, Essen und Kochen fügen sich im Erdgeschoss ein und werden durch eine Treppe mit den obenliegenden Schlafräumen und Badezimmern verbunden.